Bilocale in affitto

Vicenza, Via Livio Zambeccari - Borgo Santa Lucia
€ 570 / mese
2 locali 2 locali
50 Mq 50 Mq
1 bagno 1 bagno

Bilocale in affitto

Vicenza, Via Livio Zambeccari - Borgo Santa Lucia

Descrizione annuncio

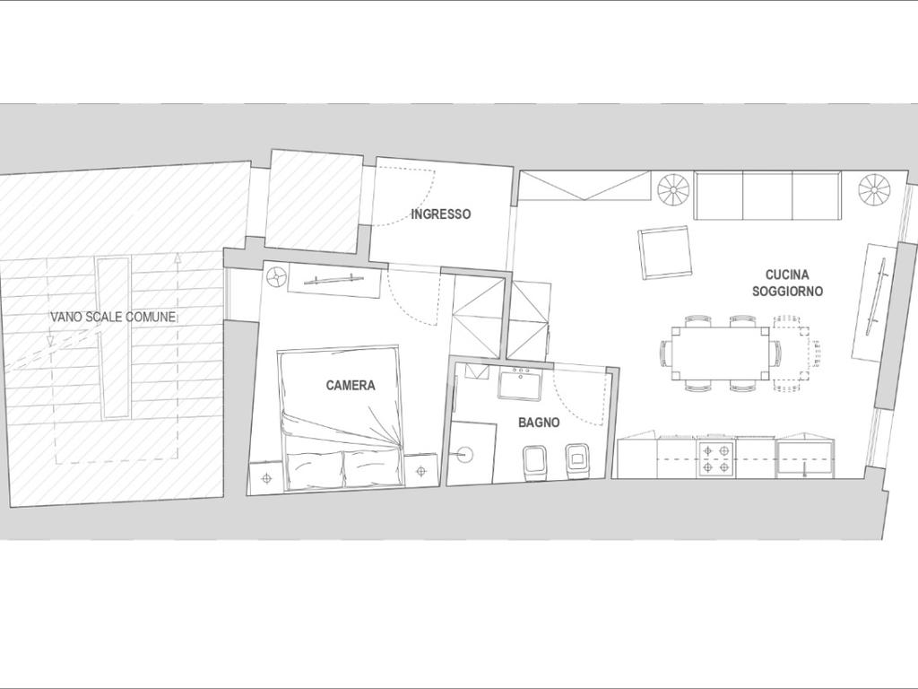
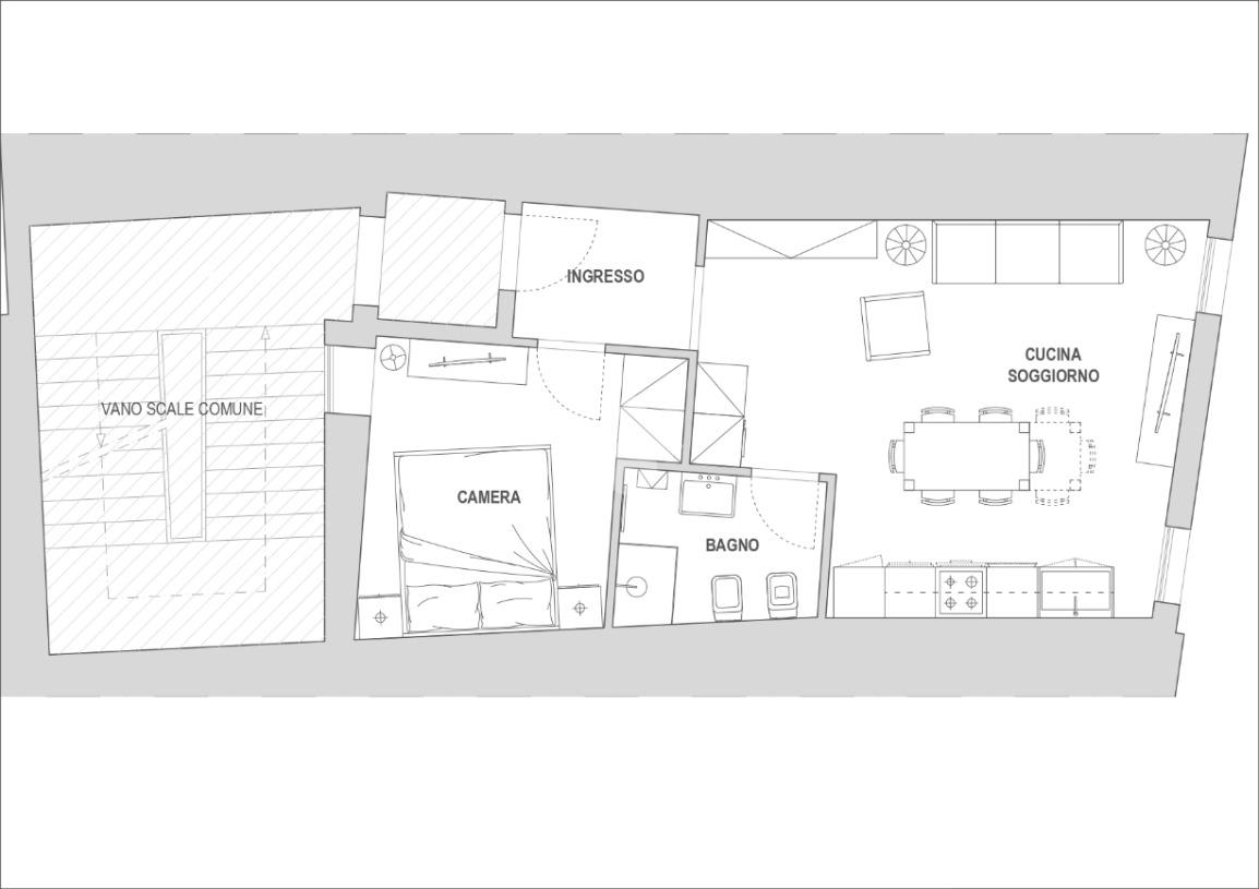
BILOCALE SANTA LUCIA - 50 MQ

VENGONO RICHIESTE MASSIME REFERENZE!

In una delle aree residenziali più ricercate della città, caratterizzata da tranquillità, comodità e ottimi collegamenti, proponiamo in locazione un ampio appartamento situato in posizione strategica in un palazzetto storico di poche unità abitative.

La proprietà si trova a pochi passi dall’università, dall’ospedale e da tutti i principali servizi — scuole, supermercati, mezzi pubblici e aree verdi — rendendola ideale sia per famiglie sia per chi desidera vivere in un contesto pratico e ben servito senza rinunciare alla quiete di una zona residenziale.

Il bilocale che proponiamo in locazione, occupa il secondo piano e non è servito di ascensore.
Entrati, un comodo disimpegno ci conduce alla zona giorno dalle ampie dimensioni e altezze generose. L'angolo cucina è spazioso e ben abitabile. Il bagno è finestrato servito da velux ed è dotato di doccia.
Completa la proprietà la camera matrimoniale.

Non è presente posto auto, ma nella via è facilmente posteggiabile un auto sulle strisce blu.

COSA SAPERE DELL'IMMOBILE: L'appartamento viene consegnato completamente arredato e sarà affittabile a partire dal 1 marzo 2026. Il canone di locazione si compone di 570 euro + 50 di spese condominiali mensili.
La casa è arredata di tutto tranne divano e lavatrice.

COME CONTATTARCI: Chiamateci al numero 0444 921474 o contattateci via Whatsapp al numero 3208525177. Seguiteci su instagram, cliccando 'segui' alla pagina Agenzia Tecnocasa San Bortolo. Scaricate gratuitamente l'App di Tecnocasa sul vostro smartphone e sarete sempre aggiornati sulle nostre proposte di vendita e locazione.

Mostra tutto

Nelle vicinanze

Trasporto pubblico Trasporto pubblico
stazione di Vicenza
stazione di Vicenza
1,6 Km
Anconetta
Anconetta
1,9 Km
Trasporto pubblico
60 m
Via IV Novembre Chiuppano
Via IV Novembre Chiuppano
150 m
Ricariche auto elettriche Ricariche auto elettriche
Lampionet Matteotti
590 m
Park Fogazzaro
950 m
Zushi Japanese Restaurant
1,3 Km
Lampionet Verdi
1,4 Km
Parcheggio Stazione di Vicenza | EnelX
1,6 Km
Scuole Scuole
Seminario
130 m
Istituto Scolastico G.A. Farina
220 m
Conservatorio Arrigo Pedrollo
240 m
Scuole
250 m
ITIS Alessandro Rossi
260 m
Farmacia Farmacia
Farmacia Donadelli
140 m
Farmacia
410 m
Farmacia Cegan
650 m
Farmacia Corso Padova
650 m
Farmacia Valeri
670 m
Ospedali Ospedali
ingresso Palazzina Uffici dell'Ospedale
510 m
Pre-Triage
570 m
Ospedale Civile di Vicenza "San Bortolo"
590 m
Casa di Cura privata Villa Berica
770 m
Casa di Cura privata Eretenia
1,2 Km
Supermercati Supermercati
Bibe Market
670 m
Coop
730 m
D Più
940 m
Quick Sisa
950 m
Silene
960 m
Negozi Negozi
Il Salumiere
170 m
Alimentari Toniolo
360 m
I buoni sapori di Adelino
580 m
Salumeria Raffello Simone
600 m
Mony
700 m
Bar Bar
L'hostaria Bacareto
30 m
Bar
50 m
Il bocconcino cafè
140 m
Le Chiccherie
230 m
Pitanta Osteria & Spuncioneria
310 m
Ristoranti Ristoranti
L'Officina Wine Bar Restaurant
220 m
Osteria Pitanta
320 m
Pizzeria Vesuvio
550 m
Ristoranti
580 m
Ristorante Indiano Buddha
600 m
Mostra tutto

Caratteristiche

Rif.:
61168038
Piano:
2 di 2 (Piano medio)
Camere da letto:
1
Arredamento:
Completo
Condizionamento:
Assente
Ascensore:
No
Mostra tutto
Prezzo Prezzo
€ 570 / mese
Spese annue Spese annue
€ 600

Classe Energetica

D
D
D
D
D
D
D
D
D
EP globale non rinnovabile:
158.00 kW h/m² anno
EP globale rinnovabile:
158.00 kW h/m² anno
EP invernale del fabbricato:
EP estiva del fabbricato:
Anno di costruzione:
1800
Riscaldamento:
Autonomo
Tipo impianto:
A radiatori
Tipo alimentazione:
Metano

Ti interessa visionare l'immobile?

Fissa un appuntamento  Fissa un appuntamento

Richiedi informazioni

Clicca su Leggi per aprire l'informativa
* Questi campi sono obbligatori
Affiliato
Studio Sviluppo Srl
Viale Jacopo Dal Verme, 78 36100 Vicenza (VI)

Il nostro staff


  • Claudio Mabilia
    Affiliato

  • Martina Canfora
    Responsabile
Viale Jacopo Dal Verme, 78 36100 Vicenza (VI)
Zona: Vicenza San Bortolo - Laghetto - San Gaetano - Villaggio Dei Fiori
Mostra su mappa
Orari: lunedì-venerdì: 09:00/13:00 - 14:30/20:00; sabato: 09:00/16:00
Affiliato
Studio Sviluppo Srl
Viale Jacopo Dal Verme, 78 36100 Vicenza (VI)

2026 Tecnocasa Franchising S.p.A. - P. IVA 08365160152 - Via Monte Bianco 60/A 20089 Rozzano (MI). Ogni agenzia ha un proprio titolare ed è autonoma. Privacy policy | Policy utilizzo | Cookie policy